Kantoor
€ 1.300

Antwerpsesteenweg 390, 2390 Malle
    • delen

Omschrijving Ref.: 7626287

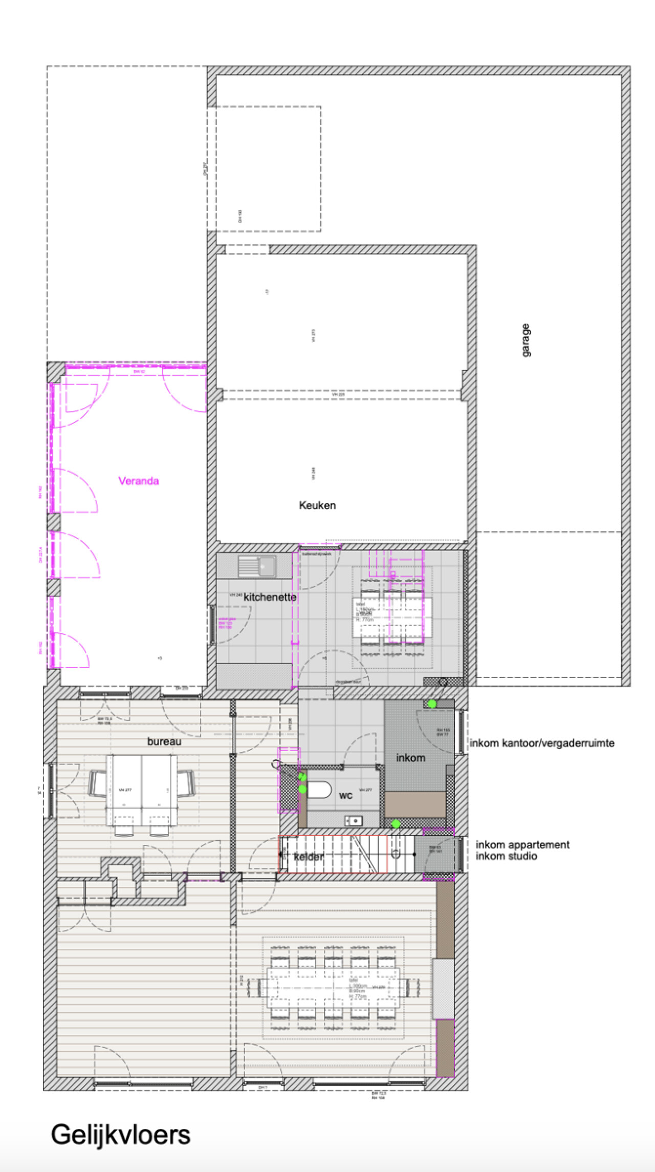
Kantoor met zonnige tuin met optie ruime garage


In het hart van Malle bevindt zich dit volledig gerenoveerde handelspand met als mogelijke optie de garage voor 200 euro/maand erbij. Indeling: Gelijkvloers handelsruimte met aparte inkom: Vergaderruimte Afzonderlijk kantoor Polyvalente ruimte keuken Toilet Grote zonnige tuin. Zeer centrale ligging dichtbij hartje Malle. Technische pluspunten: Nieuw dak - 18 zonnepanelen - Geïsoleerde muren (met crepi) & vloeren - - Alle leidingen vernieuwd - Oplaadpunt voor elektrisch rijden EPC: B - Asbestvrij - Centrale verwarming op gas - Elektriciteit conform AREI Meer info of interesse in een bezoek? Contacteer ons via laila@immodor.be of bel +32 477 30 85 59


Uw contact

Laila Kachoui +32 477 30 85 59
contact

Details van het pand

Financieel

Prijs
€ 1.300,00/maand
Beschikbaarheid
Onmiddellijk
Min. verhuurprijs
€ 1.500,00
Huurgarantie
€ 4.500,00
Vrij beroep mogelijk
Ja

Ligging

Buurt
Vrij zicht
School nabij
Ja
Winkels nabij
Ja
Openbaar vervoer nabij
Ja
Autosnelweg nabij
Ja
Sportcentrum nabij
Ja

Gebouw

Oppervlakte
210,00 m²
Aantal gevels
3
Bouwjaar
1946
Renovatiejaar
2024
Staat
Hernieuwd
Verdiep
1
Oppervlakte hoofdgebouw
210 m²
Type dak
Zadeldak
Oriëntatie achtergevel
West
Oriëntatie voorgevel
Zuid

Terrein

Grondoppervlakte
988,00 m²
Oriëntatie terras 1
West

Parkeermogelijkheden

Garage
4
Parkings buiten
Ja
Parkings binnen
Ja

Indeling

Keuken
Ja
Bureau
Ja
Toiletten
1
Kelder
Ja

Comfort

Gemeubeld
Nee

Energie

EPC
151 kWh/m²/jaar
Dubbele beglazing
Ja
Ramen
Pvc
Elektriciteitskeuring
Ja, conform
Type verwarming
Gas cv
Verwarming
Individueel

Technieken

Elektriciteit
Ja
Telefoonbekabeling
Ja
Kabeltelevisie
Ja
Riolering
Ja
Gas
Ja
Water
Ja

Meer info over deze eigendom

Bedankt voor je bericht, we contacteren je zo spoedig mogelijk.
Er was een probleem bij het versturen van het formulier, gelieve opnieuw te proberen.
(*) Gelieve de verplichte velden in te vullen.